Rodinný dom Opál č.7

133,10 m²
Úžitková plocha

Info v RK
Cena

427 m²
Výmera pozemku

5 izieb
Počet izieb

Štandard
Vyhotovenie
Každý dom ponúkame s pozemkom o výmere od 355 m² a ideálnou južnou orientáciou záhrady, ktorá presvetlí interiér po celý deň. Dispozícia je navrhnutá pre maximálny komfort rodiny a zahŕňa až 2 kúpeľne a 3 toalety. Cena je konečná a zahŕňa kompletné dokončenie do štandardu, ako aj dve vydláždené parkovacie státia priamo pred vchodom.
Pôdorys
1. podlažie
| Zádverie Kuchyňa WC Technická miestnosť Obývacia izba Pracovňa |
6,88 m² 11,16 m² 1,67 m² 6,83 m² 44,42 m² 11,40 m² |
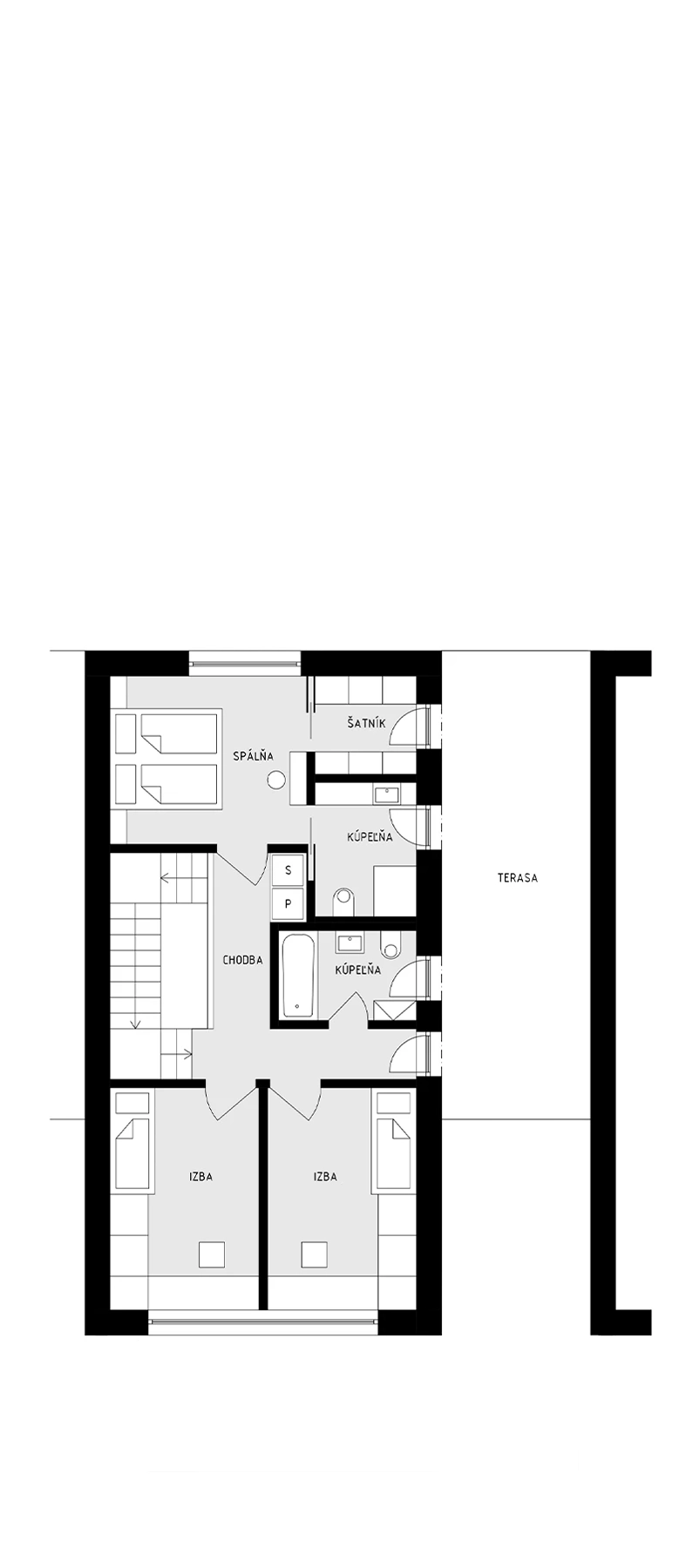
2. podlažie
| Chodba Spálňa Šatník Kúpeľňa Kúpeľňa Izba Izba Terasa |
7,88 m² 10,50 m² 3,15 m² 4,30 m² 3,92 m² 10,49 m² 10,49 m² 22,00 m² |
Harmonogram výstavby
Výhody bývania v Emerald Zálesie
15 min. od Bratislavy
Projekt Emerald Zálesie je navrhnutý pre tých, ktorí žijú dynamicky, no svoj voľný čas si chcú chrániť. Vďaka strategickej polohe nestrácate hodiny v aute, ale získavate ich pre seba.
Pokojná lokalita
Projekt je navrhnutý ako pokojná obytná štvrť mimo hlavných ťahov. Minimálna premávka zaručuje ticho a bezpečný priestor, kde sa vaše deti môžu hrať vonku bez obáv, obklopené zeleňou.
Moderná dispozícia
Logické rozdelenie na dennú a nočnú zónu zabezpečuje súkromie pre každého člena rodiny. Dostatok úložných priestorov, samostatná technická miestnosť a dve kúpeľne udržujú domov organizovaný.
Predpríprava na fotovoltiku
Využite silu slnka naplno. Predpríprava umožňuje jednoduché pripojenie solárnych panelov, ktoré môžu v budúcnosti zadarmo napájať vaše tepelné čerpadlo či nabíjať elektromobil.
Overený developer
Za projektom stojí skúsený developer PANORAMA DEVELOPMENT so silným zázemím, ktorý dbá na každý detail – od výberu lokality, architektúry až po použité materiály.
Kvalitné financovanie
Nestrácajte čas behaním po bankách. Náš tím vám pripraví porovnanie ponúk, vyberie tú najlepšiu a vybaví kompletnú administratívu spojenú s čerpaním úveru za vás.